Real Estate Phuket Thailand Real Estate Phuket Thailand Real Estate Phuket ThailandReal Estate Phuket Thailand
  • Home
  • Property management
  • Sale
  • Rent
  • Contact
Prev Next
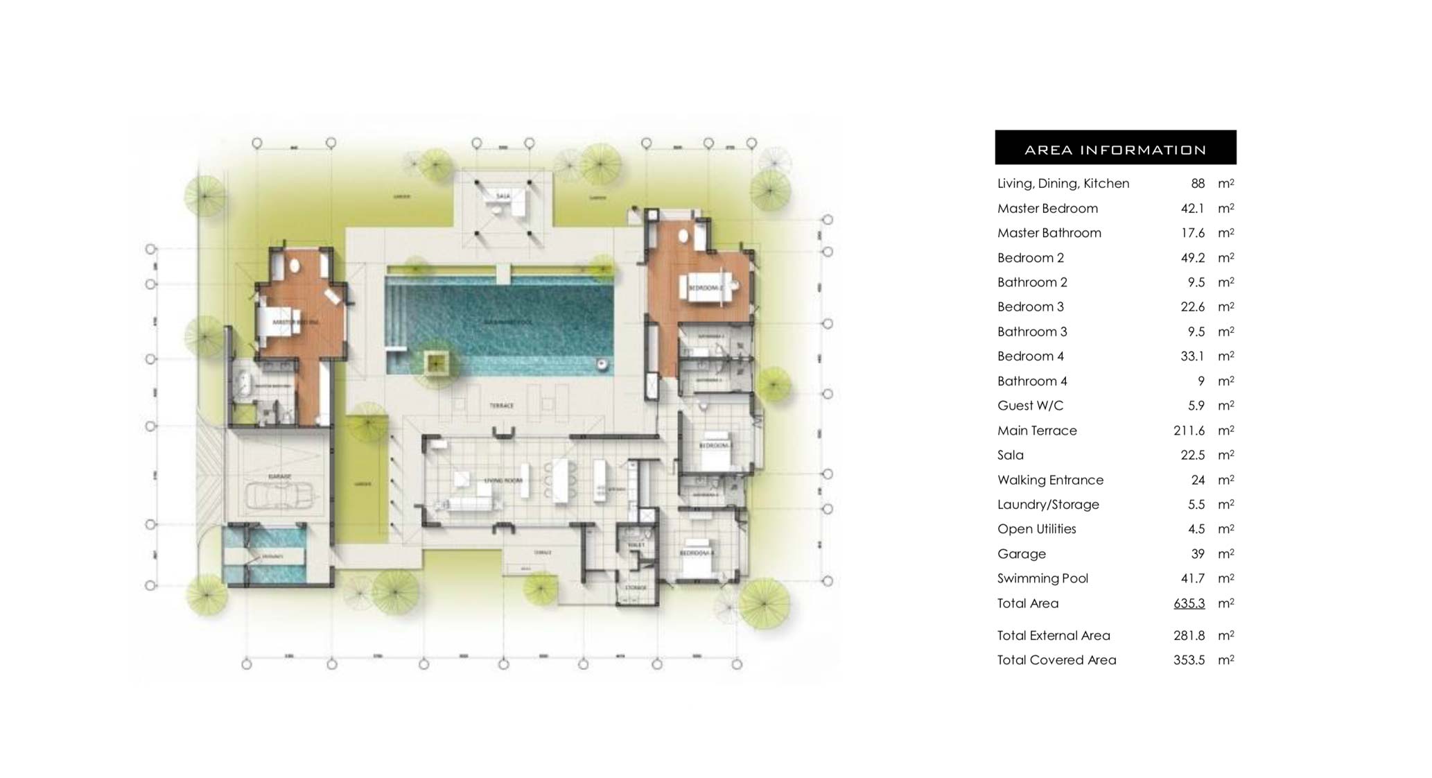
Villa Cherngtalay – 4 Bedroom

Location: Cherngtalay, Phuket
4 Bedrooms


This Villa is sold on both free hold and leasehold basis.

Leasehold title: Applies to foreigners on a 30 x 4 years lease for the land and freehold ownership of the villas.

Freehold title: Applies to Thai buyers or foreign nations buying through Thai limited companies to own both the land and the villas.

We have highly qualified lawyers under our recommendation should you need any assistance on this matter.

Schedule a inspection:
E-mail: info@real-estate-phuket-thailand.com